Inexpensive CAD design solution for beam-type heavy warehouse racking



Inexpensive CAD design solution for beam-type heavy warehouse racking






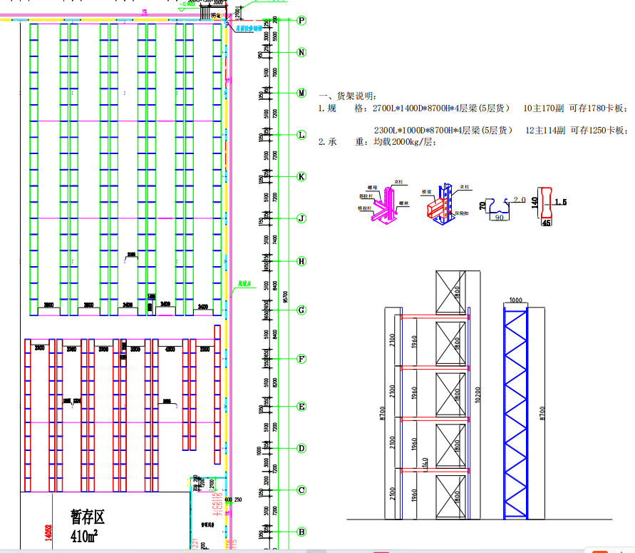
Shelving Manufacturer, Storage Solutions, Pallet Racking (Selective Systems), Boltless Shelving, Drive-In/Drive-Through Pallet Racking, Wide-Span Shelving, Mezzanine Systems, Cantilever Racking, Upright Protectors, Double-Deep Racking, Pallet Shuttle Systems, Automated Storage and Retrieval Systems (AS/RS), Supermarket Shelving Units, Warehouse-Style Supermarket Display Racks, Department Store Product Display Racks, Gondola Shelving, Display Stands, Retail Shelving, Shopping Baskets, Shopping Carts, and Custom Shelving Solutions.