A warehouse racking layout diagram is a schematic diagram showing the arrangement of racks, the location of goods, and the flow of goods within a warehouse. It is crucial for improving warehousing efficiency. Below are some common examples of warehouse racking layout diagrams and related information:
Warehouse shelving layout drawing created using CAD


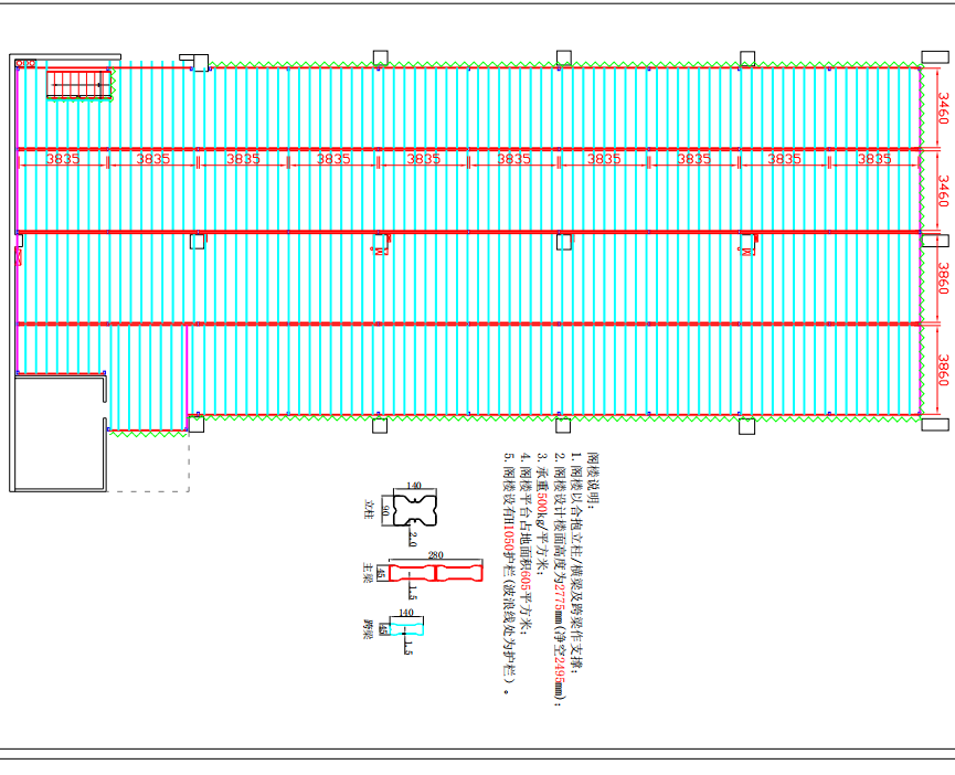
CAD drawing of attic platform layout

CAD drawing of mezzanine shelving layout



